Not too long ago, Austin City Council accredited two key developments for the event of the Colony Park Sustainable Neighborhood in northeast Austin. The council accredited zoning updates and phrases for an settlement to develop the 208-acre property.
As acknowledged by the Financial Improvement Division, these decisions play an influential position in changing this space into meticulously deliberate habitat. It’s going to embody mandatory companies; public amenities and housing ranges are all on its portfolio.
And what occurs from right here? They’ve made plans which require them to revisit the council at daybreak subsequent yr with hopes of unfurling additional specs related to funding assist packages amongst others issues wanted for creating settlement preservation alongside Catellus that’s anticipated full preliminary steps round early-2024.Then in accordance suburb format institution plan – streets & fundamental communal facilities building needs to be underway beginning late-2025 adopted intently vital residential plus business constructing improvement slated starting 2027
What plans are in place for the Park Sustainable Neighborhood?
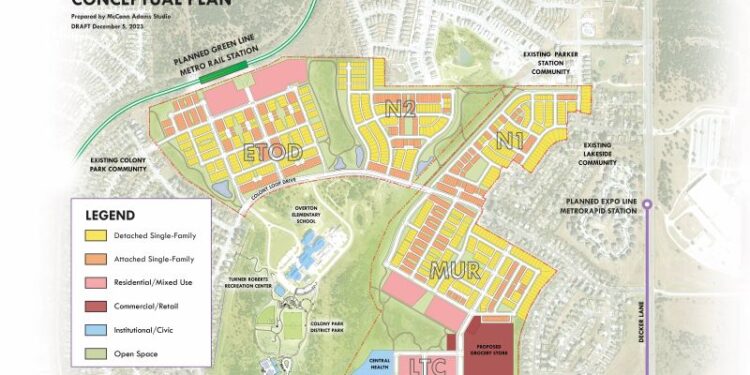
Metropolis revealed that the huge 208-acre group would accommodate probably 3,000 residential constructions with an encompassing space of about 230,000 sq. ft reserved for workplaces and institutional functions. The plans additionally included allocation of house spanning over round 130,000 sq. ft devoted solely to retail avenues whereas preserving a full expanse of approximately42 acres purely dedicated to parks and different inexperienced open areas.
“We’re thrilled with Metropolis Council’s approval of the 2 key developments, marking a big stride within the realization of the Colony Park Sustainable Neighborhood,” mentions Sylnovia Holt-Rabb, Director of the Financial Improvement Division. “This underscores our collective imaginative and prescient, and we eagerly anticipate the constructive impression on northeast Austin. These milestones replicate years of group engagement and planning, and we stay up for the transformative journey forward.”
The undertaking was initially initiated with the Colony Park Sustainable Neighborhood Introductory Section starting in 2012, powered by a $3 million monetary increase from United States’ Housing and City Improvement Division.
Learn additionally: Catellus proposes increased density for Colony Park Sustainable Community in Austin

