D.R. Horton, listed on the NYSE as DHI, has submitted website plans for Eno Village—a potential 382-unit residential group that includes a mix of townhomes and residences. Nestled in shut proximity to the picturesque West Level on the Eno Park, the event is strategically positioned south of the flowing Eno River and to the west of Freeway 501. This proposed mission displays D.R. Horton’s dedication to increasing housing choices, offering a mixture of residing areas, and contributing to the local people’s development. The submitted plans sign the corporate’s ongoing efforts to handle the evolving calls for of recent residing in a well-connected and scenic locale.
Website Plans for the Eno Village
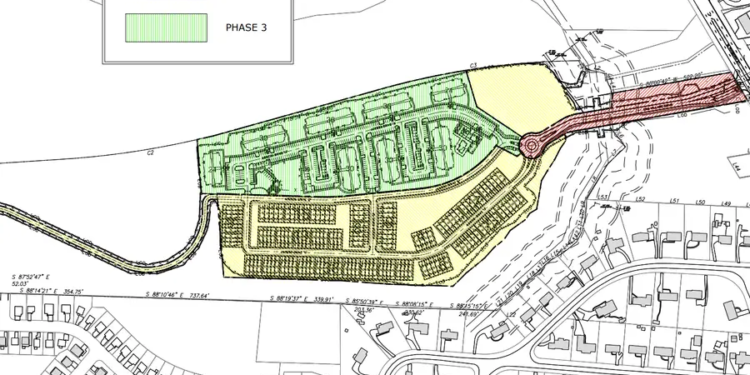
In response to the positioning plans there shall be a complete of 240 models divided evenly amongst eight buildings, every three tales. Moreover, there shall be parking for the residences with a complete of 412 areas, in floor tons. For these , in townhomes there shall be 142 choices every outfitted with a single automobile storage. Two completely different selections shall be supplied; a 16-foot townhome spanning three tales or a 20-foot-wide townhome spanning two tales. Residents can choose their choice primarily based on their wants and preferences.
Learn additionally: Groundbreaking ceremony held for South Tryon apartment in North Carolina

Eno Village growth phases
Eno Villages growth will unfold in three Phases: The primary section focuses on making ready the infrastructure, which kinds a basis, for future building initiatives. Within the section D.R. Horton will meticulously design townhomes to supply a spread of housing choices throughout the group. Lastly, the third section will introduce buildings making a rounded and complete residential panorama. To make sure planning and reduce long run results on site visitors and group infrastructure an intensive evaluation of site visitors impression has been carried out. The projected timeline goals for a buildout by 2026 showcasing the developer’s dedication, to planning and sustainable development methods.
Eno Village consists of six tons, which embody 4903, 5001, 5003 and 5011 N. Roxboro St. effectively, as 4306 Victory Boulevard and 2801 Maple Ridge Drive.
Deal with the setting
As a part of their dedication to caring for the setting D.R. Horton, the homebuilder is actively preserving an space of bushes—measuring 682,016 sq. ft—throughout the growth. This conscientious effort displays their dedication to practices by guaranteeing the preservation of greenery and contributing to the stability, within the space.
Eno Villages design prioritizes the significance of getting loads of open area spanning over 10.72 acres with 2 acres particularly devoted, to facilities like a swimming pool, a multi-use garden, a greenway path and even a canine park. Moreover, the group features a clubhouse that serves as a gathering place for residents. It’s value mentioning that this growth additionally ensures entry to the West Level on the Eno Park situated simply north of this deliberate residential space. Because of this Eno Village residents can simply take pleasure in nature and have interaction in actions. By integrating areas and being shut, to pure environment Eno Village enhances the general high quality of life for its residents.
Learn additionally: Heritage Square Redevelopment Phase One Site Plans Submitted
Different developments within the space
There was a rise, in curiosity from builders and homebuilders within the North Durham space. Beacon Partners is at present engaged on a mission that entails the development of 360 models together with a enterprise and entrepreneurship hub spanning 40,000 ft for Durham Technical Group Faculty. Moreover, Property Decision Companies LLC is planning to develop, as much as 90 residences, particularly duplexes, multiplexes, townhomes and residences.
D.R. Horton can also be the developer of Lyndon Oaks, a group, in Knightdale consisting of 500 houses which have costs beginning within the $200,000s. Moreover they’re accountable, for Chamblee Lake, which options 360 houses and is situated in Zebulon.
Learn additionally: Construction of Residences at The Pass in North Carolina well underway

